34
$699,444 Sale
Listed 128 days ago
10 MULBERRY COURT
· 2
· 2.0
· 0
· -
Key Facts
Key facts for 10 MULBERRY COURT
Property Type
Townhome, Row / Townhouse
Parking
Garage: Yes, 0 parking
MLS #
25013151
Size
-
Basement
-
Listed on
-
Lot size
-
Tax
-
Days on Market
-
Year Built
-
Maintenance Fee
-
Description
Welcome to Mulberry Court, a small, quiet, private development on its own with no through traffic, conveniently located for all that Amherstburg has to offer. 1320 sq. ft. Stone and stucco Ranch, freehold townhome. Quality construction by Sunset Luxury Homes Inc. Features include, Engineered hardwoo...d throughout, tile in wet areas, 9'ceilings with step up boxes, granite or quartz countertops, generous allowances, gas FP, large covered rear porch, concrete drive, HRV, glass shower Ensuite, walk-in, finished double garage, full basement, and much more. Contact LBO for all the additional info, other lots available, other sizes and plans, more options etc. (id:10452)
Similar Properties (No results)
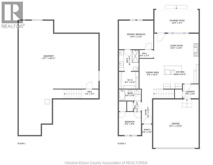
Room Types
3pc Ensuite bath
-
Measurements not available
0 sqft
4pc Bathroom
-
Measurements not available
0 sqft
Bedroom
-
Measurements not available
0 sqft
Listing courtesy of: BOB PEDLER REAL ESTATE LIMITED
This REALTOR.ca listing content is owned and licensed by REALTOR® members of The Canadian Real Estate Association.